Gulset lokalsenter felt S2 - varsel om oppstart av forhandlinger om utbyggingsavtale

Innhold

Utbyggingsavtalen fastslår hvem som har ansvar for å gjennomføre og finansiere offentlig infrastruktur.

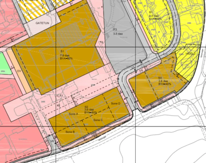
Skien kommune starter opp forhandlinger med Skien boligbyggelag AS as om utbyggingsavtale for Gulsetsenteret med omkringliggende omgivelser, planID 2018002.

Informasjon om reguleringsplanen er tilgjengelig i sak 79/20. https://opengov.360online.com/Meetings/skien/Meetings/Details/1215913?agendaItemId=231338

Les om utbyggingsavtaler i Skien kommune

Fremforhandlet avtale vil bli lagt ut til offentlig ettersyn før den fremmes for behandling i bystyret.

Denne kunngjøringen er i henhold til plan- og bygningsloven av 27. juni 2008 nr. 71 § 17-4 første ledd.

Innspill til forhandlingene kan rettes skriftlig til:

E-post: post@skien.kommune.no, eller
Postadresse: Skien kommune, Postboks 158, 3701 Skien
Merk henvendelsen med saksnummer: 22/19791.

Kart som viser område for utbyggingsavtalen.

Kontakt

  • Knut M. Amlie, utbyggingsansvarlig
Til toppen